Pardubice, Benešovo náměstí 2509
Představuji
- Cena 5 475 000$
Představuji
Pardubice, Benešovo náměstí 2509
- Cena 5 475 000$
Popis
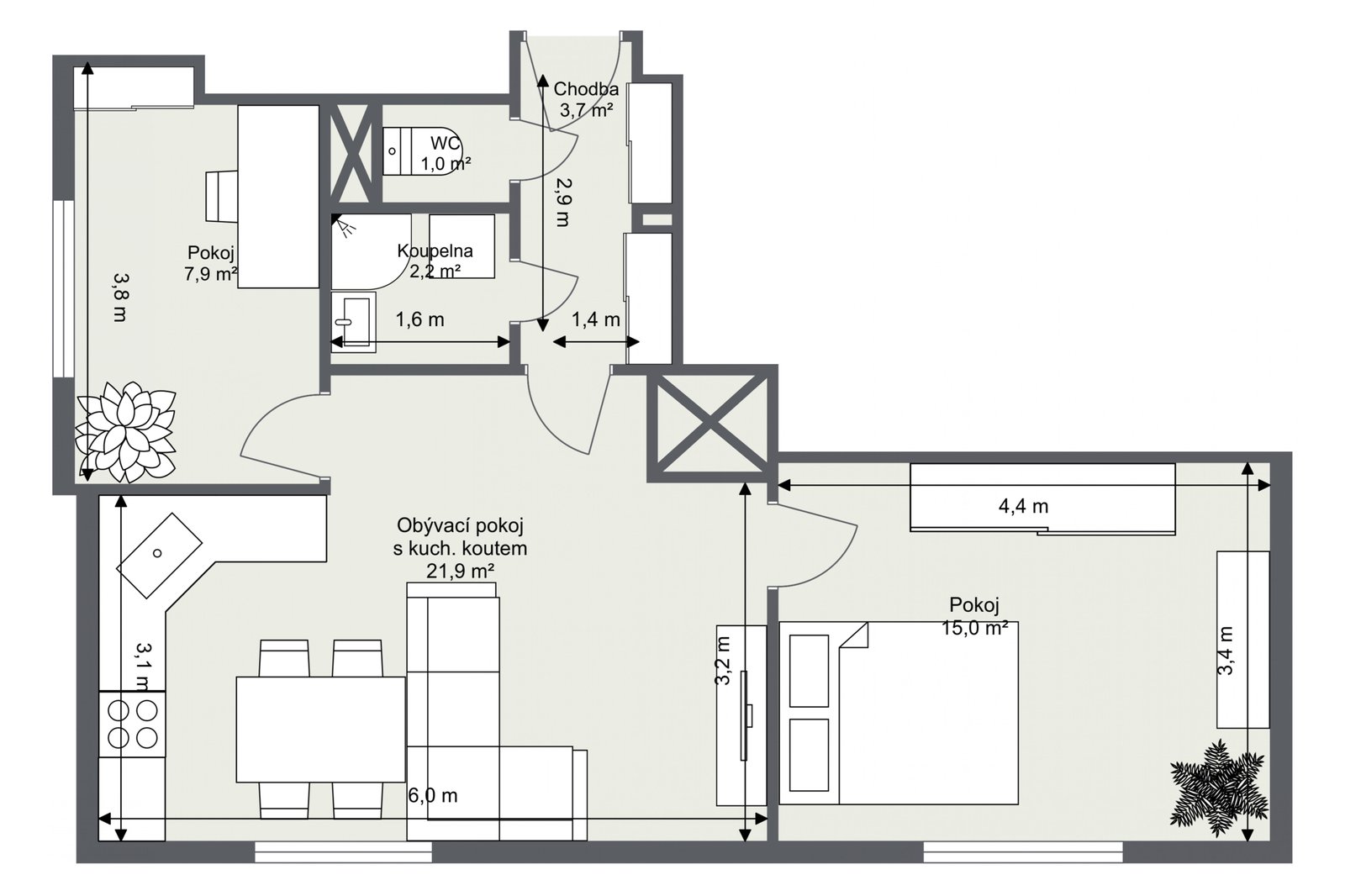
Nabízíme byt 3+kk o ploše 53 m² v udržovaném bytovém domě v atraktivní lokalitě Benešovo náměstí, Pardubice. Dispozici tvoří obývací pokoj s kuchyňským koutem, dvě samostatné ložnice, koupelna, oddělené WC a vstupní chodba. Byt je ve velmi dobrém stavu po rekonstrukci, s moderními podlahami, plně vybavenou kuchyňskou linkou a klimatizací. Praktické dispoziční řešení poskytuje dostatek soukromí i úložného prostoru. Dům je dlouhodobě udržovaný se zrekonstruovanými společnými prostory. Součástí společných prostorů je kolárna, sušárna, prádelna, společný balkón a výtah, též je k bytu sklepní kóje. V okolí se nachází kompletní občanská vybavenost, zastávka MHD a rychlá dostupnost do centra. Vhodné pro vlastní bydlení i jako investice k pronájmu. Pro více informací a sjednání prohlídky nás kontaktujte.
Adresa
Otevřít na mapáchPodrobnosti
Updated on February 4, 2026 at 5:55 am-
Cena Cena 5 475 000$
-
Velikost nemovitosti 53 m²
-
Ložnice 2
-
Místnosti 3
-
Koupelna 1
-
Typ nemovitosti Byt
Co je poblíž?
Powered by Yelp
Please supply your API key Click Here
PENB
-
Energetic class: B
- A+
- A
- | Energy class BB
- C
- D
- E
- F
- G
- H
- leon.matejkaa@gmail.com







